您好,欢迎来到广州市曼布斯钢结构工程有限公司!


新闻中心

新闻中心

首页 -> 行业见闻 -> 14个集装箱组成的豪华咖啡馆

14个集装箱组成的豪华咖啡馆


出处:本站 分类:行业见闻 时间:2018-04-28 作者:管理员


 

+

基层用船运集装箱建造

 

 

 

 

+

黑色和绿色外观的单元咖啡馆使用航运集装箱制作

 

 

 

 

+
 

 

 

 

+

单元咖啡馆是IT学校学生聚会的场所

 

 

 

 

+

外面的绿色和上层的露台给咖啡馆一个独特的名片

 

 

 

 

+

咖啡馆外观

 

 

 

 

+

 

 

 

+

现代的工业元素和明亮的色彩塑造了咖啡馆的内部

 

 

 

 

+

室内绿色和持久性黄色与六角形瓷砖地板

 

 

 

 

+

 

 

 

+

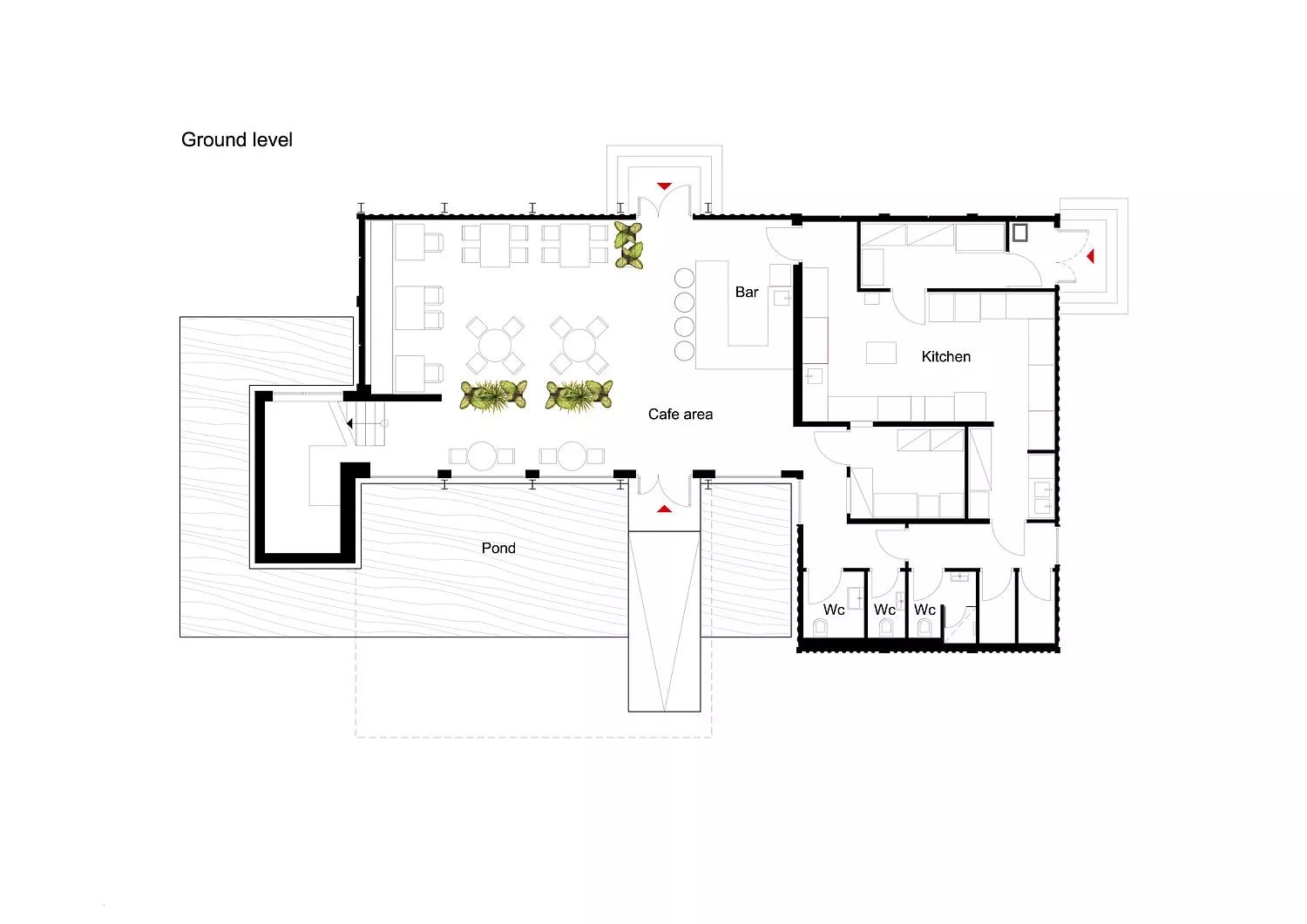
咖啡厅底层平面图

 

 

 

 

+

 

带露台的单元咖啡厅平面图

 

 


关键词: 14个集装箱组成的豪华咖啡馆